VUB en ULB lanceren oproep aan ontwerpers voor universitaire voorzieningen van Usquare.brussels
De Vrije Universiteit Brussel en de Université libre de Bruxelles lanceerden deze woensdag een oproep aan ontwerpers voor de renovatie en reconversie van 7 gebouwen die behoren tot de voormalige rijkswachtkazernes, op de hoek van de Kroonlaan en de Generaal Jacqueslaan in Elsene. Dit wordt een van de eerste concrete realisaties in het kader van het project Usquare.brussels. De historische en architecturaal opmerkelijke gebouwen zullen worden omgevormd tot universitaire voorzieningen en openbare buurtvoorzieningen.
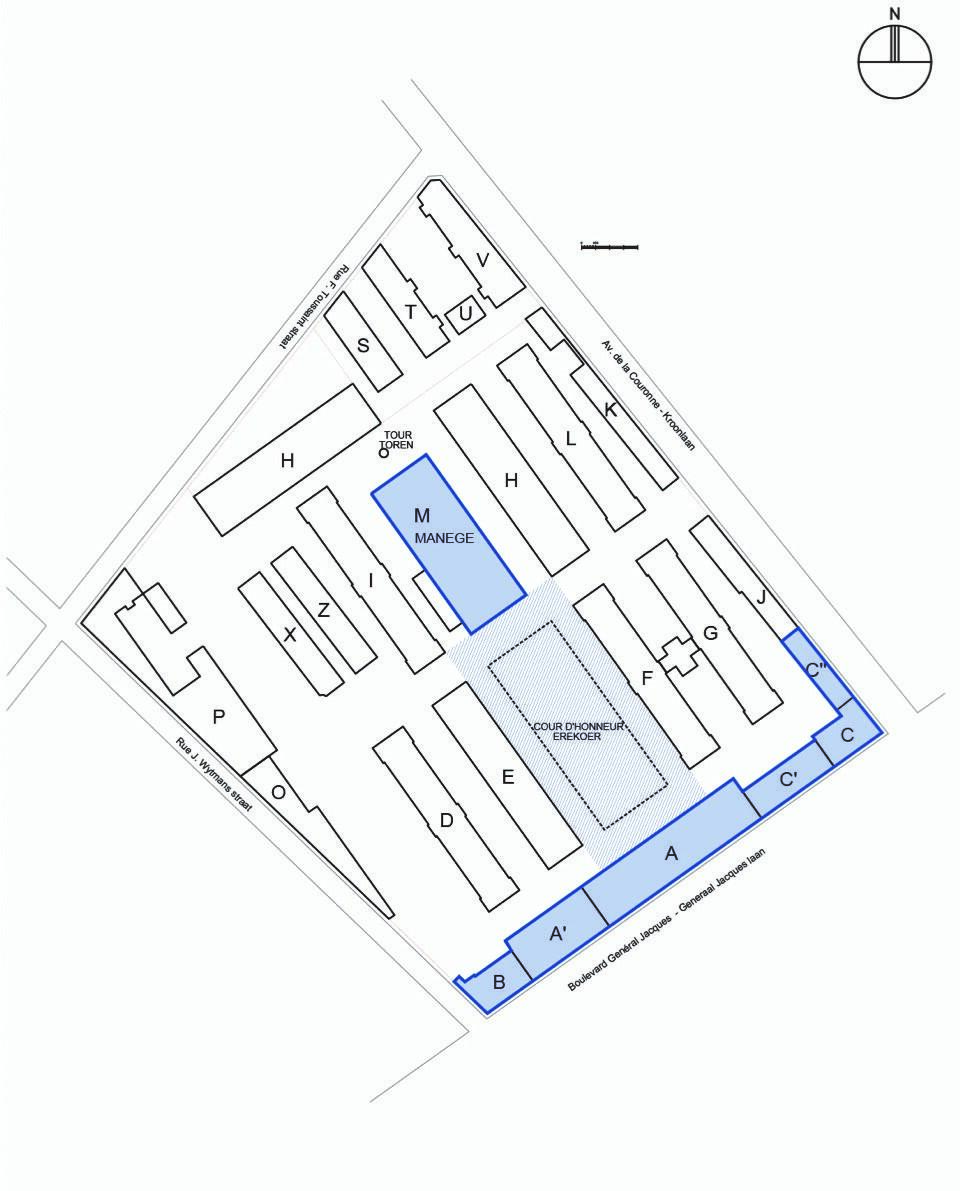
- In gebouw A, het hoofdgebouw met gevel aan de Generaal Jacqueslaan en een oppervlakte van ruim 4.000 m2, komt een internationaal huis, een documentatiecentrum over duurzame ontwikkeling en een nieuw interdisciplinair en interuniversitair onderzoekscentrum dat is gewijd aan duurzame ontwikkeling in een stedelijke context.
- De hoekgebouwen tussen de Generaal Jacqueslaan en de Kroonlaan en de Juliette Wytsmanstraat (gebouw B, C en C’’) bieden plaats aan het eerste Instituut voor Gevorderde Studies van Brussel: een belangrijk element voor de toekomstige internationale aantrekkingskracht van Usquare.brussels.
- In de oude manege in het midden van het terrein komt een hal voor duurzame voeding, die aandacht zal besteden aan duurzaam en milieubewust consumeren, met onder meer een ruimte waar consumenten informatie krijgen over de impact van hun voedingsgewoontes op het milieu, een duurzame en biologische markt en een Sustainable Foodcourt (een gezellige plaats om iets te eten met vooral streek-, bio- en seizoensproducten).
Duurzame ontwikkeling en circulaire economie zijn de rode draad door deze opdracht. De kandidaten moeten dus innovatieve praktijken ontwikkelen voor het circulair gebruik van hulpbronnen met een ecologische een sociaaleconomische aanpak die de oude kazerne zal ontwikkelen tot een exemplarische site.
De opdracht wordt uitgeschreven in het kader van het project 'Internationale universiteitswijk', dat de ULB, de VUB en het Brussels Gewest uitwerken in de context van het Operationeel Programma EFRO 2014-2020 van het Brussels Hoofdstedelijk Gewest.
Het budget voor de uitvoering van de werken bedraagt 10,3 miljoen euro excl. btw.
De gebouwen beslaan samen ongeveer 8.400 m² bruto bovengrondse oppervlakte.
- De officiële documenten van de openbare aanbesteding zijn hier beschikbaar.
- De uiterste datum voor de indiening van de vragen tot deelname is 22 januari 2018 om 12 uur.
Het ereloon is vastgelegd op 14 procent. Er wordt een vergoeding van 15.000 euro toegekend aan elk team dat wordt gevraagd om deel te nemen, op voorwaarde dat zij een regelmatige offerte hebben ingediend en 50 procent van de punten op de toekenningscriteria hebben behaald.
De bouwmeester van het Brussels Hoofdstedelijk Gewest begeleidt het project en zal het adviescomité assisteren bij de selectie en toekenning.
